価格 |
3,780万円 |
||
|---|---|---|---|
間取 |
3SLDK |
築年月 |
2026/01(建築予定) |
建物面積 |
105.16m²(31.81坪) |
土地面積 |
117.29m²(35.48坪) |
住所 |
船橋市田喜野井4丁目 |
住所詳細 |
27-4 |
交通 |
京成松戸線薬園台まで 徒歩13分 |
お電話でのお問い合わせ
物件番号:32414
お電話でお問い合わせの際は、物件番号をお伝えください。
047-406-8818
営業時間:8:30 AM - 19:00 PM
定休日:水曜日
ポイント
POINT
船橋市田喜野井4丁目 新築一戸建て ミラスモ【1号棟】
不動産のオオタニなら仲介手数料無料0円!でご紹介しております♪→無料の秘密はこちら
◆◆1号棟について◆◆
◇京成松戸線『薬円台』駅から徒歩13分の静かな住宅街に建つ新築住宅。
◇駐車スペースは2台分付き。並列のため出し入れもしやすいです。
◇21帖超えのLDKはとても開放的♪大きなソファ等も余裕をもって置けそうです。
◇炊事中もリビングまで見渡せる対面式のキッチン。
◇ストック食品やキッチン周りの小物もスッキリ収納できるパントリー。
◇水回り集中設計。家事動線に配慮しました。
◇2階の納戸は収納としてはもちろん、居室としても十分ご活用できますよ。
◇ウォークインクローゼットは2箇所付いております。
◇2部屋から出入りできる続きバルコニーも魅力的。
不動産のオオタニなら仲介手数料無料0円!でご紹介しております♪→無料の秘密はこちら
◆◆1号棟について◆◆
◇京成松戸線『薬円台』駅から徒歩13分の静かな住宅街に建つ新築住宅。
◇駐車スペースは2台分付き。並列のため出し入れもしやすいです。
◇21帖超えのLDKはとても開放的♪大きなソファ等も余裕をもって置けそうです。
◇炊事中もリビングまで見渡せる対面式のキッチン。
◇ストック食品やキッチン周りの小物もスッキリ収納できるパントリー。
◇水回り集中設計。家事動線に配慮しました。
◇2階の納戸は収納としてはもちろん、居室としても十分ご活用できますよ。
◇ウォークインクローゼットは2箇所付いております。
◇2部屋から出入りできる続きバルコニーも魅力的。
物件詳細DETAIL
建物構造 |
木造 |
間取詳細 |
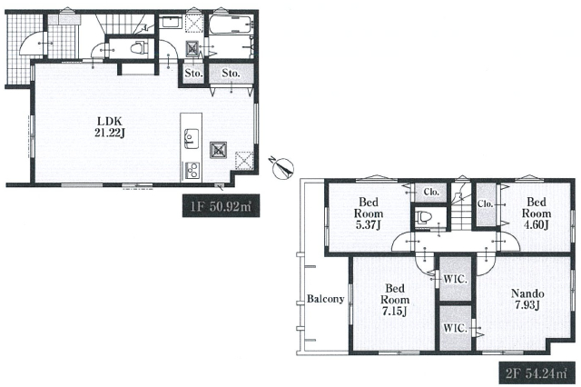
(1F)LDK21.22、(2F)納戸7.93、(2F)洋7.15、(2F)洋5.37、(2F)洋4.6 |
|---|---|---|---|
地目 |
宅地 |
地勢 |
平坦 |
現況 |
未完成 |
駐車場 |
有(2台分) |
都市計画 |
市街化区域 |
用途地域1 |
第一種中高層住居専用地域 |
建ぺい率 |
60% |
容積率 |
200% |
引渡時期 |
相談 |
土地権利 |
所有権 |
私道面積 |
4.95m² |
セットバック |
|
接道 |
北西 4m(幅員) 公道 7.6m(接面) |
||
学区 |
船橋市立田喜野井小学校 350m
船橋市立二宮中学校 700m |
||
特色/設備 |
☆都市ガス・公営水道・本下水
☆地盤調査実施済み!地盤保証20年となっております。 ☆シロアリ保証5年付きです。 ☆段差を最小限に抑えたバリアフリー仕様。 ☆長期固定金利で安心のフラット35Sがご利用できます。 ☆夏は涼しく、冬はあたたかく。 断熱性に優れたアルミ樹脂複合サッシ仕様です。 ☆やさしく足元を照らす階段足元灯で、つまずきや転倒を防ぎ、安全性を高めます。 ☆高効率ガス給湯器「エコジョーズ」で快適&エコな暮らし。 ご内覧を希望のお客様は当社にて立ち合い・ご案内をさせて頂きますのでお手数ですがTEL0120-74-8818までお電話下さい。急いで現地へ向かいますので御連絡お待ちしております。 ポータルサイトや他社のホームページでも気になる物件があればお気軽にご連絡くださいませ(^^)/ |
||
特記事項 |
※網戸、カーテンレール、照明器具、TVアンテナは別途となります。 ※登記に関する、司法書士・家屋調査士は売主の指定となります。 ※図面と現況が異なる場合、現況優先になります。 ※フラット35をご利用の場合は165,000円(税込)がかかります。 |
||
メモ |
※小学校は二宮小学校(700m)、田喜野井小学校(350m)から選択できます。 ※中学校は二宮中学校(700m)、三田中学校(850m)から選択できます。 |
||
情報更新日 |
2025年10月23日 |
次回更新予定日 |
2025年10月24日 |
取引条件有効期限 |
2025年11月02日 |
取引態様 |
仲介 |
※掲載されている物件データが現状と異なる場合は現状を優先します。
周辺地図MAP
ローンシミュレーション
LOAN SIMULATION
- 物件の価格
- 3,780万円
- 月々の返済額
- 円
- 年間の返済額
- 円
- 返済総額
- 円
- 利息合計
- 円
万円
%
年
※毎回の返済額が開始から終了まで均等となる「元利均等返済」で算出しています。
※金利は期間中固定となる固定金利を採用しています。
※月々の返済額は小数点以下を繰り上げしています。
※シミュレーションでの結果は、あくまでも目安で、概算になります。実際にローン契約をする際は、詳細を金融機関にご確認ください。
※実際のローン契約時には諸費用・税金(手数料や印紙税、保証料など)が別途かかりますので、契約の際にご確認ください。
不動産のオオタニCOMPANY
所在地 |
千葉県船橋市丸山5-29-25 |
||
|---|---|---|---|
免許番号 |
千葉県知事免許(5)第13802号 |
||
会員 |
(社)全日本不動産協会
|
||
電話番号 |
047-406-8818 |
FAX番号 |
047-406-8837 |
営業時間 |
8:30 AM - 19:00 PM |
定休日 |
水曜日 |

