
価格 |
2,790万円 |
||
---|---|---|---|
間取 |
3LDK |
築年月 |
2025/08(1年未満) |
建物面積 |
90.32m²(27.32坪) |
土地面積 |
86.76m²(26.24坪) |
住所 |
船橋市松が丘3丁目 |
住所詳細 |
45-7 |
交通 |
京成松戸線北習志野まで バス11分 停歩5分 |
お電話でのお問い合わせ
物件番号:32391
お電話でお問い合わせの際は、物件番号をお伝えください。
047-406-8818
営業時間:8:30 AM - 19:00 PM
定休日:水曜日
ポイント
POINT
船橋市松が丘3丁目 新築一戸建て
リナージュ【2号棟】
不動産のオオタニなら仲介手数料無料0円!でご紹介しております♪→無料の秘密はこちら
◆◆2号棟について◆◆
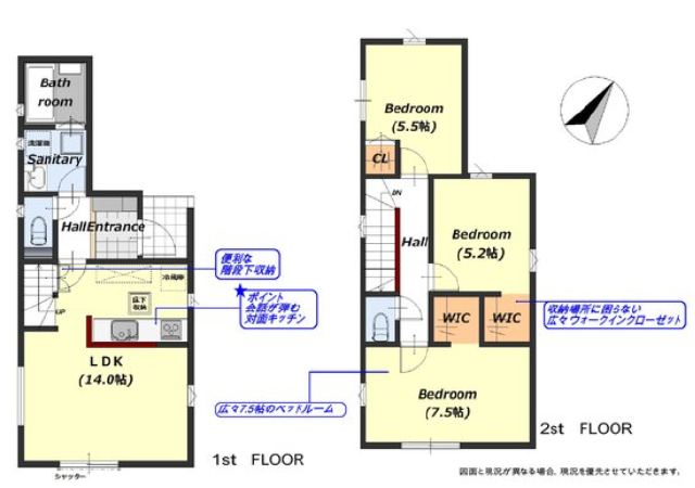
◇戸建てが建ち並ぶ静かな住宅街に建つ1棟です。
◇リビングへ入る前に手洗いができる造り。
◇ご家族の様子がよく見える対面式のキッチンとなっております。
◇誰が帰ってきたかすぐわかるリビングイン階段仕様です。
◇全てのお部屋に収納が付いております。
◇2階には大容量のウォークインクローゼットを2か所設けました。
◇主寝室は約7.5帖とゆとりある広さを確保。
リナージュ【2号棟】
不動産のオオタニなら仲介手数料無料0円!でご紹介しております♪→無料の秘密はこちら
◆◆2号棟について◆◆
◇戸建てが建ち並ぶ静かな住宅街に建つ1棟です。
◇リビングへ入る前に手洗いができる造り。
◇ご家族の様子がよく見える対面式のキッチンとなっております。
◇誰が帰ってきたかすぐわかるリビングイン階段仕様です。
◇全てのお部屋に収納が付いております。
◇2階には大容量のウォークインクローゼットを2か所設けました。
◇主寝室は約7.5帖とゆとりある広さを確保。
物件詳細DETAIL
建物構造 |
木造 |
間取詳細 |
(1F)LDK14.0、(2F)洋7.5、(2F)洋5.5、(2F)洋5.2 |
---|---|---|---|
地目 |
宅地 |
地勢 |
|
現況 |
完成済 |
駐車場 |
有 |
都市計画 |
市街化区域 |
用途地域1 |
第一種低層住居専用地域 |
建ぺい率 |
50% |
容積率 |
100% |
引渡時期 |
即時 |
土地権利 |
所有権 |
私道面積 |
13.41m² |
セットバック |
|
接道 |
北西 4m(幅員) 私道 位置指定有 5.9m(接面) |
||
学区 |
船橋市立古和釜小学校 600m
船橋市立古和釜中学校 600m |
||
特色/設備 |
☆設計・建設住宅性能評価書付き!耐震等級は最高の3です。
☆長期優良住宅のため、税制優遇が充実しています。 ☆フラット35Sのご利用が可能ですよ。 ☆建物も土地も安心の保証付きとなっております。 ☆建築物省エネ法に基づく評価で、高い省エネ性能が認められた住宅です。 ☆断熱性や省エネ基準が高い「ZEH水準」のため、環境にもお財布にもやさしい住まい。 ☆都市ガス・公営水道・本下水 ご内覧を希望のお客様は当社にて立ち合い・ご案内をさせて頂きますのでお手数ですがTEL0120-74-8818までお電話下さい。急いで現地へ向かいますので御連絡お待ちしております。 ポータルサイトや他社のホームページでも気になる物件があればお気軽にご連絡くださいませ(^^)/ |
||
特記事項 |
※網戸、カーテンレール、照明器具、TVアンテナは別途となります。 ※登記に関する、司法書士・家屋調査士は売主の指定となっております。 ※図面と現況が異なる場合、現況優先になります。 ※土地面積に協定地約0.5平米含む |
||
メモ |
|||
情報更新日 |
2025年10月12日 |
次回更新予定日 |
2025年10月13日 |
取引条件有効期限 |
2025年10月22日 |
取引態様 |
仲介 |
※掲載されている物件データが現状と異なる場合は現状を優先します。
周辺地図MAP
ローンシミュレーション
LOAN SIMULATION
- 物件の価格
- 2,790万円
- 月々の返済額
- 円
- 年間の返済額
- 円
- 返済総額
- 円
- 利息合計
- 円
万円
%
年
※毎回の返済額が開始から終了まで均等となる「元利均等返済」で算出しています。
※金利は期間中固定となる固定金利を採用しています。
※月々の返済額は小数点以下を繰り上げしています。
※シミュレーションでの結果は、あくまでも目安で、概算になります。実際にローン契約をする際は、詳細を金融機関にご確認ください。
※実際のローン契約時には諸費用・税金(手数料や印紙税、保証料など)が別途かかりますので、契約の際にご確認ください。

不動産のオオタニCOMPANY
所在地 |
千葉県船橋市丸山5-29-25 |
||
---|---|---|---|
免許番号 |
千葉県知事免許(5)第13802号 |
||
会員 |
(社)全日本不動産協会
|
||
電話番号 |
047-406-8818 |
FAX番号 |
047-406-8837 |
営業時間 |
8:30 AM - 19:00 PM |
定休日 |
水曜日 |