
価格 |
4,090万円 |
||
---|---|---|---|
間取 |
4LDK |
築年月 |
2026/02(建築予定) |
建物面積 |
102.68m²(31.06坪) |
土地面積 |
167.45m²(50.65坪) |
住所 |
船橋市二和西5丁目 |
住所詳細 |
13付近 |
交通 |
京成松戸線二和向台まで 徒歩18分
京成松戸線鎌ケ谷大仏まで バス3分 停歩9分 |
お電話でのお問い合わせ
物件番号:32331
お電話でお問い合わせの際は、物件番号をお伝えください。
047-406-8818
営業時間:8:30 AM - 19:00 PM
定休日:水曜日
ポイント
POINT
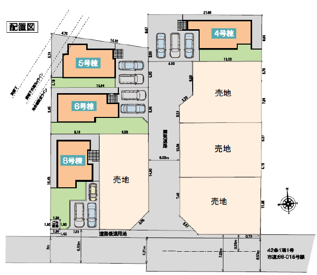
船橋市二和西5丁目 新築一戸建て
アイタウン【5号棟】 不動産のオオタニなら仲介手数料無料0円!でご紹介しております♪→無料の秘密はこちら
◆◆5号棟について◆◆
◇静かでのどかな住宅街に位置する全8棟の分譲地内の1棟。
◇駐車スペースは最大2台分。並列駐車のため出し入れもしやすいです。
◇玄関には下駄箱の他に収納を設けました。
◇帰宅後、部屋へ入る前に手洗いができる間取りです。
◇リビングにいるご家族の様子も良く見える対面式のキッチン。
◇1階和室はリビングからも廊下からも出入りできます。
◇全てのお部屋に収納付き。
◇2階にも洗面台があるので、慌ただしい朝も身支度がスムーズです。
◇全室南向きとなっております。
◇最寄り駅周辺にはスーパーやコンビニもあってお買い物が便利ですよ。
アイタウン【5号棟】 不動産のオオタニなら仲介手数料無料0円!でご紹介しております♪→無料の秘密はこちら
◆◆5号棟について◆◆
◇静かでのどかな住宅街に位置する全8棟の分譲地内の1棟。
◇駐車スペースは最大2台分。並列駐車のため出し入れもしやすいです。
◇玄関には下駄箱の他に収納を設けました。
◇帰宅後、部屋へ入る前に手洗いができる間取りです。
◇リビングにいるご家族の様子も良く見える対面式のキッチン。
◇1階和室はリビングからも廊下からも出入りできます。
◇全てのお部屋に収納付き。
◇2階にも洗面台があるので、慌ただしい朝も身支度がスムーズです。
◇全室南向きとなっております。
◇最寄り駅周辺にはスーパーやコンビニもあってお買い物が便利ですよ。
物件詳細DETAIL
建物構造 |
木造 |
間取詳細 |
(1F)LDK15.66、(1F)和6.0、(2F)洋8.0、(2F)洋6.0、(2F)洋6.0 |
---|---|---|---|
地目 |
宅地 |
地勢 |
平坦 |
現況 |
未完成 |
駐車場 |
有(2台分) |
都市計画 |
市街化調整区域 |
用途地域1 |
無指定 |
建ぺい率 |
50% |
容積率 |
100% |
引渡時期 |
相談 |
土地権利 |
所有権 |
私道面積 |
- |
セットバック |
無 |
接道 |
東 6m(幅員) 私道 |
||
学区 |
船橋市立三咲小学校 1,500m
船橋市立御滝中学校 1,500m |
||
特色/設備 |
☆耐震等級は最高の3を取得済み。
☆フラット35Sがご利用可能です。 ☆専門スタッフによる定期点検で、建物保証が最長35年となります。 ☆建物お引渡し日から20年間の地盤保証付きです。 ☆網戸が施工済みのため、追加費用が抑えられます。 ☆玄関ドアは開閉のしやすい電子錠です。 ☆追い焚き回数が減り、省エネにも貢献してくれる高断熱浴槽サーモバスS。 ☆全窓ペアガラス仕様。結露を抑え、清潔で快適な住まいをサポートします。 ☆都市ガス・公営水道・浄化槽 ご内覧を希望のお客様は当社にて立ち合い・ご案内をさせて頂きますので お手数ですがTEL0120-74-8818までお電話下さい。急いで現地へ向かいますので御連絡お待ちしております。 ポータルサイトや他社のホームページでも、気になる物件があればお気軽にご連絡くださいませ(^^)/ |
||
特記事項 |
※カーテンレール、照明器具、TVアンテナは別途となります。 ※登記に関する司法書士・家屋調査士は売主の指定となります。 ※図面と現況が異なる場合、現況優先になります。 ※地目:一部雑種地 ※現況地目:宅地 ※送電線通過に伴う地役権設定あり、約19㎡ |
||
メモ |
・周辺は空き地や畑が点在しております。風による砂埃等は現地で十分ご確認ください。 ・物件周辺には高圧線の鉄塔がありますことをご確認ください。 |
||
情報更新日 |
2025年09月30日 |
次回更新予定日 |
2025年10月02日 |
取引条件有効期限 |
2025年10月10日 |
取引態様 |
仲介 |
※掲載されている物件データが現状と異なる場合は現状を優先します。
周辺地図MAP
ローンシミュレーション
LOAN SIMULATION
- 物件の価格
- 4,090万円
- 月々の返済額
- 円
- 年間の返済額
- 円
- 返済総額
- 円
- 利息合計
- 円
万円
%
年
※毎回の返済額が開始から終了まで均等となる「元利均等返済」で算出しています。
※金利は期間中固定となる固定金利を採用しています。
※月々の返済額は小数点以下を繰り上げしています。
※シミュレーションでの結果は、あくまでも目安で、概算になります。実際にローン契約をする際は、詳細を金融機関にご確認ください。
※実際のローン契約時には諸費用・税金(手数料や印紙税、保証料など)が別途かかりますので、契約の際にご確認ください。

不動産のオオタニCOMPANY
所在地 |
千葉県船橋市丸山5-29-25 |
||
---|---|---|---|
免許番号 |
千葉県知事免許(5)第13802号 |
||
会員 |
(社)全日本不動産協会
|
||
電話番号 |
047-406-8818 |
FAX番号 |
047-406-8837 |
営業時間 |
8:30 AM - 19:00 PM |
定休日 |
水曜日 |