価格 |
4,450万円 |
||
---|---|---|---|
間取 |
3LDK |
築年月 |
2025/08(1年未満) |
建物面積 |
97.98m²(29.63坪) |
土地面積 |
131.71m²(39.84坪) |
住所 |
船橋市二和西2丁目 |
住所詳細 |
3-16付近 |
交通 |
京成松戸線滝不動まで 徒歩18分
総武線快速船橋まで バス30分 停歩8分
東武野田線船橋まで バス30分 停歩8分 |
お電話でのお問い合わせ
物件番号:31592
お電話でお問い合わせの際は、物件番号をお伝えください。
047-406-8818
営業時間:8:30 AM - 19:00 PM
定休日:水曜日
ポイント
POINT
船橋市二和西2丁目 新築一戸建て
フレスティア【1号棟】
不動産のオオタニなら仲介手数料無料0円!でご紹介しております♪→無料の秘密はこちら
◆◆1号棟について◆◆
◇地震から家を守る木造住宅用制震装置施工の3LDKの新築住宅です。
◇玄関ホール横に洗面脱衣室があるので、帰宅後すぐに手洗いができます。
◇ワイドな洗面室には室内物干しがあるので、便利ですよ。
◇開放感のある対面式のキッチンは料理が楽しくなりそうです♪
◇リビング内に家事をしながらお子様の勉強が確認できるフリースペースカウンターございます。
◇周辺は戸建が建ち並ぶ静かなでのどかな住環境です。
フレスティア【1号棟】
不動産のオオタニなら仲介手数料無料0円!でご紹介しております♪→無料の秘密はこちら
◆◆1号棟について◆◆
◇地震から家を守る木造住宅用制震装置施工の3LDKの新築住宅です。
◇玄関ホール横に洗面脱衣室があるので、帰宅後すぐに手洗いができます。
◇ワイドな洗面室には室内物干しがあるので、便利ですよ。
◇開放感のある対面式のキッチンは料理が楽しくなりそうです♪
◇リビング内に家事をしながらお子様の勉強が確認できるフリースペースカウンターございます。
◇周辺は戸建が建ち並ぶ静かなでのどかな住環境です。
物件詳細DETAIL
建物構造 |
木造 |
間取詳細 |
(1F)LDK18.8、(2F)洋6.2、(2F)洋6.2、(2F)洋5.2 |
---|---|---|---|
地目 |
宅地 |
地勢 |
|
現況 |
完成済 |
駐車場 |
有(2台分) |
都市計画 |
市街化区域 |
用途地域1 |
第一種低層住居専用地域 |
建ぺい率 |
40% |
容積率 |
80% |
引渡時期 |
相談 |
土地権利 |
所有権 |
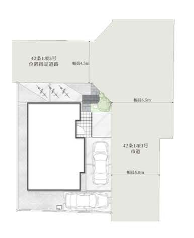
私道面積 |
16m² |
セットバック |
無 |
接道 |
東 5m(幅員) 公道
北 4.5m(幅員) 私道 |
||
学区 |
船橋市立金杉台小学校 480m
船橋市立御滝中学校 780m |
||
特色/設備 |
☆炭の室内換気システムを完備。調湿力に優れた炭で部屋全体を快適に♪
☆長期固定金利で安心のフラット35Sが利用できます。 ☆土地も安心、地盤調査実施済みです! ☆訪問者が一目でわかるTVモニター付インターホン。 ☆浴室乾燥機、ビルトイン食洗機など、あると便利な設備がたくさん。 ☆専任スタッフの定期点検があります。お引き渡し後も安心ですね。 ☆LDKのアクセントクロスも魅力的です。 ☆都市ガス・公営水道・本下水 ご内覧を希望のお客様は当社にて立ち合い・ご案内をさせて頂きますのでお手数ですがTEL0120-74-8818までお電話下さい。急いで現地へ向かいますので御連絡お待ちしております。 ポータルサイトや他社のホームページでも気になる物件があればお気軽にご連絡くださいませ(^^)/ |
||
特記事項 |
※網戸、カーテンレール、照明器具、TVアンテナは別途となります。 ※登記に関する、司法書士・家屋調査士は売主の指定となります。 ※図面と現況が異なる場合、現況優先になります。 ※法第22条区域 ※風致地区 |
||
メモ |
・敷地前に電柱、敷地内に支線が立っています。 |
||
情報更新日 |
2025年10月14日 |
次回更新予定日 |
2025年10月15日 |
取引条件有効期限 |
2025年10月24日 |
取引態様 |
仲介 |
※掲載されている物件データが現状と異なる場合は現状を優先します。
周辺地図MAP
ローンシミュレーション
LOAN SIMULATION
- 物件の価格
- 4,450万円
- 月々の返済額
- 円
- 年間の返済額
- 円
- 返済総額
- 円
- 利息合計
- 円
万円
%
年
※毎回の返済額が開始から終了まで均等となる「元利均等返済」で算出しています。
※金利は期間中固定となる固定金利を採用しています。
※月々の返済額は小数点以下を繰り上げしています。
※シミュレーションでの結果は、あくまでも目安で、概算になります。実際にローン契約をする際は、詳細を金融機関にご確認ください。
※実際のローン契約時には諸費用・税金(手数料や印紙税、保証料など)が別途かかりますので、契約の際にご確認ください。

不動産のオオタニCOMPANY
所在地 |
千葉県船橋市丸山5-29-25 |
||
---|---|---|---|
免許番号 |
千葉県知事免許(5)第13802号 |
||
会員 |
(社)全日本不動産協会
|
||
電話番号 |
047-406-8818 |
FAX番号 |
047-406-8837 |
営業時間 |
8:30 AM - 19:00 PM |
定休日 |
水曜日 |