船橋市二和西2丁目 新築戸建
京成松戸線 / 滝不動駅 徒歩17分
3,890万円
| 物件番号 | Bk32822 | ||
|---|---|---|---|
| 種目 | 新築戸建 | ||
| 価格 | 3,890万円 | ||
| 住所 | 船橋市二和西2丁目7−1 | ||
| 交通 | 京成松戸線 滝不動まで 徒歩17分 | ||
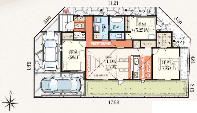
| 間取 | 3LDK | ||
| 間取詳細 | (1F)LDK17.0、(1F)洋7.0、(1F)洋6.0、(1F)洋5.25 | ||
| 建物面積 | 87.77m2 ( 26.55坪 ) | 建築確認番号 | 第HPA-25-12033-1号 |
| 建物構造 | 木造 | 階建 | 1階建 |
| 築年月 | R08/02 | 現況 | 完成済 |
| 駐車場 | 有(2台分) | 引渡時期 | 相談 |
| 土地面積 | 178.38m2 ( 53.95坪 ) | セットバック | |
| 地目 | 宅地 | 地勢 | 平坦 |
| 土地権利 | 所有権 | 私道面積 | 381.79m2 |
| 都市計画 | 市街化調整区域 | 用途地域 | 無指定 |
| 建ぺい率 | 50% | 容積率 | 100% |
| 小学校 | 船橋市立二和小学校 720m | 中学校 | 船橋市立御滝中学校 900m |
| 接道 | 東 6.5m(幅員) 公道 北 6.5m(幅員) 公道 西 6m(幅員) 私道 | ||
| 特色 | ☆設計・建設住宅性能評価書付き!耐震等級は最高の3です。
☆フラット35Sの利用できる安心の建物となっております。 ☆耐震等級などの6項目で最高等級を取得済みの建物です。 ☆建築物省エネ法に基づく評価で、高い省エネ性能が認められた住宅です。 ☆断熱性や省エネ基準が高い「ZEH水準」のため、環境にもお財布にもやさしい住まい。 ☆長期優良住宅認定物件!税制優遇がございます。 ☆建物も土地も安心の保証付きとなっていますよ♪ ☆都市ガス・公営水道・浄化槽 ご内覧を希望のお客様は当社にて立ち合い・ご案内をさせて頂きますのでお手数ですがTEL0120-74-8818までお電話下さい。急いで現地へ向かいますので御連絡お待ちしております。 ポータルサイトや他社のホームページでも気になる物件があればお気軽にご連絡くださいませ(^^)/ | ||
| 特記事項 | ※網戸、カーテンレール、照明器具、TVアンテナは別途となります。 ※登記に関する、司法書士・家屋調査士は売主の指定となります。 ※図面と現況が異なる場合、現況優先になります。 ※私道持分:新設道路381.79平米×1/14 | ||
| メモ | ※浄化槽検査手数料が別途必要となります。 ※敷地内に設置されている防犯灯(電柱に設置)の維持管理費および電気代につきましては買主の負担となります。 ※小学校は二和(20m)・金杉台(850m)から選択できます。 ・周辺には空き地や畑がございます。風による砂埃等は現地で十分ご確認ください。 | ||
| 取引態様 | 仲介 | 取引条件 有効期限 | 令和08年3月5日 |
地図・周辺環境
地図
あくまで参考程度の情報となります。














グラファーレ【1号棟】
不動産のオオタニなら仲介手数料無料0円!でご紹介しております♪→無料の秘密はこちら
◆◆1号棟について◆◆
◇全14棟の分譲地内に建つ新築住宅。
◇開放的な三方角地の区画ですよ♪
◇希少性の高い平屋タイプ。 ワンフロアで完結する、暮らしやすさに配慮した設計。
◇駐車スペースは2台分ございます。
◇シューズクローク付きで、すっきり片付く玄関。
◇対面式キッチンは、料理をしながら会話も楽しめ、子育て世帯にも安心です。
◇ストック食品や日用品の収納にも便利なパントリー。
◇全室収納付きで、生活空間を広く活用できる住まいです。
◇分譲地内は6m道路のため車の往来もしやすくなっております。