船橋市夏見台3丁目 新築戸建
東武野田線 / 塚田駅 徒歩12分
5,180万円| 物件番号 | Bk32758 | ||
|---|---|---|---|
| 種目 | 新築戸建 | ||
| 価格 | 5,180万円 | ||
| 住所 | 船橋市夏見台3丁目26−28 | ||
| 交通 | 東武野田線 塚田まで 徒歩12分 東武野田線 新船橋まで 徒歩30分 東葉高速線 東海神まで 徒歩34分 | ||
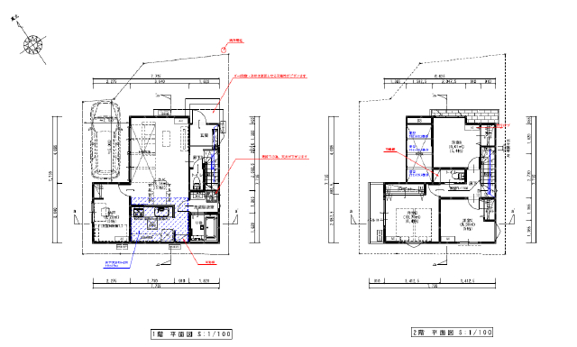
| 間取 | 3SLDK | ||
| 間取詳細 | (1F)LDK17.0、(1F)納戸5.0、(2F)洋6.4、(2F)洋5.4、(2F)洋5.0 | ||
| 建物面積 | 90.04m2 ( 27.23坪 ) | 建築確認番号 | |
| 建物構造 | 木造 | 階建 | 2階建 |
| 築年月 | R08/03 | 現況 | 未完成 |
| 駐車場 | 有 | 引渡時期 | 相談 |
| 土地面積 | 100m2 ( 30.25坪 ) | セットバック | |
| 地目 | 宅地 | 地勢 | |
| 土地権利 | 所有権 | 私道面積 | |
| 都市計画 | 市街化区域 | 用途地域 | 第一種低層住居専用地域 |
| 建ぺい率 | 50% | 容積率 | 100% |
| 小学校 | 船橋市立夏見台小学校 650m | 中学校 | 船橋市立船橋中学校 1900m |
| 接道 | 北東 4.5m(幅員) 私道 | ||
| 特色 | ☆フラット35Sの利用できる安心の建物となっております。
☆建物も土地も安心の保証付きとなっていますよ♪ ☆都市ガス・公営水道・本下水 ご内覧を希望のお客様は当社にて立ち合い・ご案内をさせて頂きますのでお手数ですがTEL0120-74-8818までお電話下さい。急いで現地へ向かいますので御連絡お待ちしております。 ポータルサイトや他社のホームページでも気になる物件があればお気軽にご連絡くださいませ(^^)/ | ||
| 特記事項 | ※網戸、カーテンレール、照明器具、TVアンテナは別途となります。 ※登記に関する、司法書士・家屋調査士は売主の指定となります。 ※図面と現況が異なる場合、現況優先になります。 | ||
| メモ | ・前面道路は行き止まりとなっております。 | ||
| 取引態様 | 仲介 | 取引条件 有効期限 | 令和08年3月5日 |
地図・周辺環境
地図
あくまで参考程度の情報となります。














メルディア【3号棟】
不動産のオオタニなら仲介手数料無料0円!でご紹介しております♪→無料の秘密はこちら
◆◆3号棟について◆◆
◇閑静な住宅街に建つ新築一戸建て。
◇LDKは2階までの吹抜けがあり、明るさと開放感がありますよ♪
◇1階の納戸は収納だけでなく居室としても趣味のお部屋としても◎。
◇水回り集中設計。家事動線に配慮しました!
◇2階のお部屋は全て収納が付いています。