32762:新築戸建 船橋市習志野台5丁目Ⅱ 新築一戸建て サニータウン 1号棟
| 価格 | 3,998万円 |
|---|---|
| 所在地 | 船橋市習志野台5丁目 |
| 交通 | 東葉高速線 船橋日大前まで 徒歩18分 京成松戸線 習志野まで 徒歩18分 総武線 津田沼まで バス23分 停歩2分 |
| 最寄バス停 | 千葉日大一高まで 徒歩2分 |
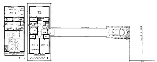
| 間取 | 4LDK |
| 土地面積 | 117.23m²(35.46坪) |
| 建物面積 | 100.81m²(30.49坪) |
| 私道面積 | |
| 築年月 | 2026/03 |
| 学区 | 小学校区:船橋市立習志野台第二小学校 240m 中学校区:船橋市立習志野台中学校 550m |
| 建物構造 | 木造 |
|---|---|
| 階建 | 地上2階建 |
| 建ぺい率 | 60% |
| 容積率 | 200% |
| 地目 | 宅地 |
| 用途地域 | 第一種中高層住居専用地域 |
| 土地権利 | 所有権 |
| 取引態様 | 仲介 |
| 引渡時期 | 相談 |
| セットバック | |
|---|---|
| 接道 | 北東 6.01m(幅員) 公道 |
| 諸費用 | |
| 他法条例 | |
| 建築確認番号 | |
| 取引条件有効期限 | 令和08年2月17日 |
特色
☆フラット35Sの利用できる安心の建物となっております。
☆建物も土地も安心の保証付きとなっていますよ♪
☆太陽光発電システムが設置されています。
☆都市ガス・公営水道・本下水・東京電力
ご内覧を希望のお客様は当社にて立ち合い・ご案内をさせて頂きますのでお手数ですがTEL0120-74-8818までお電話下さい。急いで現地へ向かいますので御連絡お待ちしております。
ポータルサイトや他社のホームページでも気になる物件があればお気軽にご連絡くださいませ(^^)/
コメント
船橋市習志野台5丁目Ⅱ 新築一戸建て
サニータウン【1号棟】
不動産のオオタニなら仲介手数料無料0円!でご紹介しております♪→無料の秘密はこちら
◆◆1号棟について◆◆
◇戸建住宅街に建つ新築一戸建てです。
◇2階LDKは開放感のある高天井を採用!
◇炊事中もお部屋を見渡せる対面式キッチンです!
◇食洗機が標準装備!家事の負担が軽減されそうですね。
◇1階の納戸は居室としても十分お使いいただけます。
◇南向きバルコニーは陽当たりの良さを実感できそうです♪
◇室内物干しがあり、雨の日も安心♪
周辺地図
あくまで参考程度の情報となります。












