32692:新築戸建 船橋市三山2丁目 新築一戸建て 1号棟
| 価格 | 2,998万円 |
|---|---|
| 所在地 | 船橋市三山2丁目 |
| 交通 | 総武線 津田沼まで バス18分 停歩9分 京成本線 京成大久保まで 徒歩23分 |
| 最寄バス停 | 市営住宅まで 徒歩9分 |
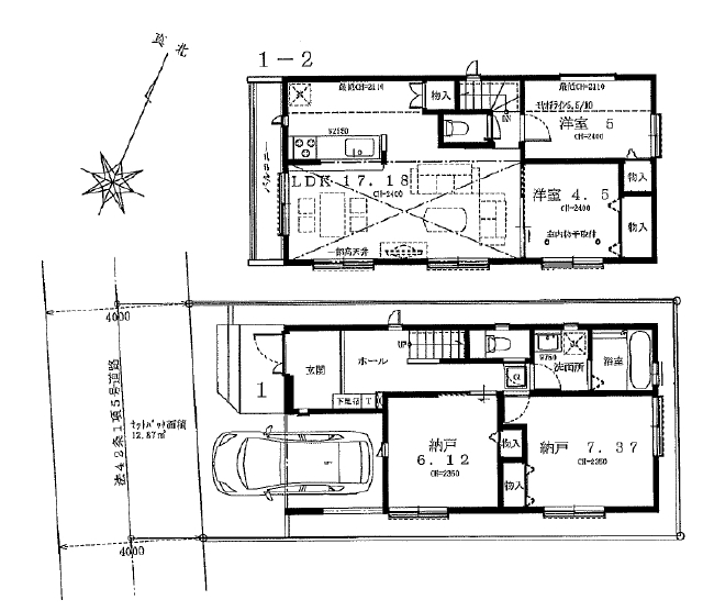
| 間取 | 2SLDK |
| 土地面積 | 86.28m²(26.09坪) |
| 建物面積 | 104.95m²(31.74坪) |
| 私道面積 | 12.87m² |
| 築年月 | 2026/01 |
| 学区 | 小学校区:船橋市立三山小学校 180m 中学校区:船橋市立三田中学校 1,010m |
| 建物構造 | 木造 |
|---|---|
| 階建 | 地上2階建 |
| 建ぺい率 | 60% |
| 容積率 | 160% |
| 地目 | 宅地 |
| 用途地域 | 第一種中高層住居専用地域 |
| 土地権利 | 所有権 |
| 取引態様 | 仲介 |
| 引渡時期 | 相談 |
| セットバック | 有 面積12.87m²(3.9坪) |
|---|---|
| 接道 | 南西 4m(幅員) 私道 位置指定有 6.5m(接面) |
| 諸費用 | |
| 他法条例 | |
| 建築確認番号 | 第25UDI1C建03369号 |
| 取引条件有効期限 | 令和08年2月17日 |
特色
☆フラット35Sの利用できる安心の建物となっております。
☆建物も土地も安心の保証付きとなっていますよ♪
☆都市ガス・公営水道・本下水・東京電力
ご内覧を希望のお客様は当社にて立ち合い・ご案内をさせて頂きますのでお手数ですがTEL0120-74-8818までお電話下さい。急いで現地へ向かいますので御連絡お待ちしております。
ポータルサイトや他社のホームページでも気になる物件があればお気軽にご連絡くださいませ(^^)/
コメント
船橋市三山2丁目 新築一戸建て
【1号棟】
不動産のオオタニなら仲介手数料無料0円!でご紹介しております♪→無料の秘密はこちら
◆◆1号棟について◆◆
◇小学校至近の住宅街に建つ新築一戸建て。
◇駐車場はガレージタイプです。
◇1階納戸は居室としても十分お使いいただけます。
◇2階にLDKのある間取りです。
◇炊事中もお部屋を見渡せる対面式キッチン!
◇全てのお部屋に収納がしっかりございます!
周辺地図
あくまで参考程度の情報となります。

















