32558:新築戸建 船橋市芝山5丁目 新築一戸建て タイムスペースハウス 1号棟
| 価格 | 4,580万円 |
|---|---|
| 所在地 | 船橋市芝山5丁目 |
| 交通 | 東葉高速線 飯山満まで 徒歩12分 |
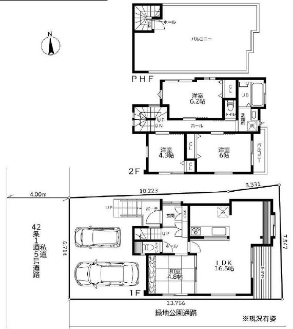
| 間取 | 4LDK |
| 土地面積 | 109.06m²(32.99坪) |
| 建物面積 | 92.47m²(27.97坪) |
| 私道面積 | 13.36m² |
| 築年月 | 2026/04 |
| 学区 | 小学校区:船橋市立芝山東小学校 550m 中学校区:船橋市立芝山中学校 800m |
| 建物構造 | 木造 |
|---|---|
| 階建 | 地上2階建 |
| 建ぺい率 | 50% |
| 容積率 | 100% |
| 地目 | 宅地 |
| 用途地域 | 第一種低層住居専用地域 |
| 土地権利 | 所有権 |
| 取引態様 | 仲介 |
| 引渡時期 | 相談 |
| セットバック | 有 |
|---|---|
| 接道 | 西 4m(幅員) 私道 6.7m(接面) |
| 諸費用 | |
| 他法条例 | |
| 建築確認番号 | 第25UDI1C建05141号 |
| 取引条件有効期限 | 令和08年2月17日 |
特色
☆建物は安心の10年保証ですよ!
☆土地も安心、地盤調査実施済!地盤10年保証システム。
☆訪問者が一目でわかるTVモニター付インターホン。
☆浴室換気乾燥機付きユニットバス。
☆1、2階に温水洗浄便座付きです。
☆窓は断熱性能の高いLow-eペアガラスですよ。
☆玄関ドアは2ロックと、防犯サムターン付です。
☆洗車や植栽の水まきにも便利な外水道もあります。
☆都市ガス、公共本下水、公営水道
ご内覧を希望のお客様は当社にて立ち合い・ご案内をさせて頂きますのでお手数ですがTEL0120-74-8818までお電話下さい。急いで現地へ向かいますので御連絡お待ちしております。
ポータルサイトや他社のホームページでも気になる物件があればお気軽にご連絡くださいませ(^^)/
コメント
船橋市芝山5丁目新築一戸建 タイムスペースハウス【1号棟】
不動産のオオタニなら仲介手数料無料0円!でご紹介しております♪→無料の秘密はこちら
◆◆1号棟について◆◆
◇デザイン性の高い外観が目を惹く新築戸建です。
◇駐車スペースは2台分ございます。出し入れのしやすい並列タイプです。
◇玄関には収納をたっぷり設けました。
◇ご家族の会話も自然と弾む、対面式のキッチン。
◇リビング横の和室は板の間のある落ち着いた雰囲気。客間としても最適です。
◇2階に洗面室や浴室がある造りとなっております。
◇外の視線を気にせず家族団らんが楽しめる、広いスカイバルコニーも魅力的♪
◇小中学校までは徒歩10分圏内。大通りを渡らず通えてお子様も安心。
周辺地図
あくまで参考程度の情報となります。




















