船橋市習志野台5丁目 新築一戸建て サニータウン 2号棟

価格 4,598万円

1/22
Point

船橋市習志野台5丁目 新築一戸建て
サニータウン【2号棟】

不動産のオオタニなら仲介手数料無料0円!でご紹介しております♪→無料の秘密はこちら
◆◆2号棟について◆◆
◇戸建住宅街に建つ新築一戸建てです。
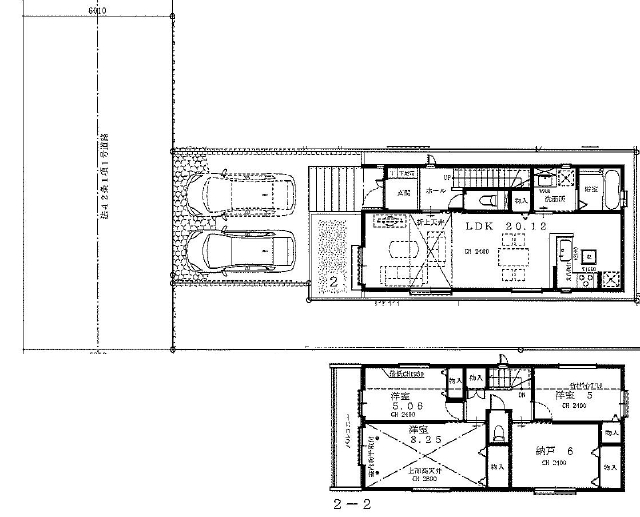
◇駐車スペースは2台分ございます。出し入れのしやすい並列タイプです。
◇LDKは開放感のある折上天井を採用!
◇L字型キッチンは作業スペースの広さが魅力です♪
◇食洗機が標準装備!家事の負担が軽減されそうですね。
◇水回り集中設計。家事動線に配慮しました!
◇2階居室には全て収納がついております。
◇室内物干しがあり、雨の日も安心♪

物件番号「32760」をお伝えください。

電話でお問合せ LINEでお問合せ

物件情報

価格 4,598万円
種目 新築戸建
交通 東葉高速線 船橋日大前まで 徒歩18分
京成松戸線 習志野まで 徒歩18分
総武線 津田沼まで バス23分 停歩2分
住所
船橋市習志野台5丁目 地図
住所詳細 33-16
土地面積 33坪
建物面積 31.18坪
間取 4LDK
間取詳細 (1F)LDK20.12、(2F)洋8.25、(2F)納戸6.0、(2F)洋5.06、(2F)洋5.0
構造 木造
築年月 2026/05
都市計画 市街化区域
用途地域 第一種中高層住居専用地域
建蔽率 60%
容積率 200%
地目 宅地
土地権利 所有権
現況 未完成
駐車場 有(2台分)
接道 南西 6.01m(幅員) 公道
私道面積 -
小学校区 船橋市立習志野台第二小学校
中学校区 船橋市立習志野台中学校
メモ
特色 ☆フラット35Sの利用できる安心の建物となっております。
☆建物も土地も安心の保証付きとなっていますよ♪
☆都市ガス・公営水道・本下水・東京電力
ご内覧を希望のお客様は当社にて立ち合い・ご案内をさせて頂きますのでお手数ですがTEL0120-74-8818までお電話下さい。急いで現地へ向かいますので御連絡お待ちしております。
ポータルサイトや他社のホームページでも気になる物件があればお気軽にご連絡くださいませ(^^)/
特記事項 ※網戸、カーテンレール、照明器具、TVアンテナは別途となります。
※登記に関する、司法書士・家屋調査士は売主の指定となります。
※図面と現況が異なる場合、現況優先になります。
取引態様 仲介
※掲載されている物件データが現状と異なる場合は現状を優先します。

更新情報

情報更新日 2026年01月30日
次回更新予定日 2026年02月27日
取引条件有効期限 2026年02月13日

ローンシミュレーション

物件価格 4,598万円
頭金 万円
金利
借入期間
再計算
月々の返済額
年間の返済額
返済総額
利息合計
※ 毎回の返済額が開始から終了まで均等となる「元利均等返済」で算出しています。
※ 金利は期間中固定となる固定金利を採用しています。
※ 月々の返済額は小数点以下を繰り上げしております
※ シミュレーションでの結果は、あくまでも目安で、概算になります。実際にローン契約をする際は、詳細を金融機関にご確認ください。
※ 実際のローン契約時には諸費用・税金(手数料や印紙税、保証料など)が別途かかりますので、契約の際にご確認ください。

物件番号「32760」をお伝えください。

電話でお問合せ LINEでお問合せ
電話 メール LINE
簡易お問合せ

お名前


メールアドレス


問合せ内容


OK