船橋市夏見台3丁目 新築一戸建て メルディア 1号棟

価格 4,880万円

1/11
Point

船橋市夏見台3丁目 新築一戸建て
メルディア【1号棟】

不動産のオオタニなら仲介手数料無料0円!でご紹介しております♪→無料の秘密はこちら
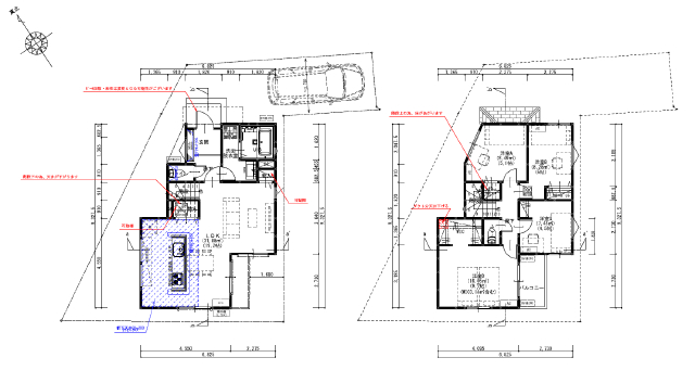
◆◆1号棟について◆◆
◇閑静な住宅街に建つ新築一戸建て。
◇動線の良いアイランドキッチンも魅力のひとつです!
◇リビングイン階段は家族の会話が自然と増えそうですね♪
◇2階主寝室はゆったり9帖以上!たっぷり収納もありますよ♪
◇南向きのバルコニーは日当たりの良さを実感できそうです。

物件番号「32756」をお伝えください。

電話でお問合せ LINEでお問合せ

物件情報

価格 4,880万円
種目 新築戸建
交通 東武野田線 塚田まで 徒歩12分
東武野田線 新船橋まで 徒歩30分
東葉高速線 東海神まで 徒歩34分
住所
船橋市夏見台3丁目 地図
住所詳細 26-28
土地面積 36.29坪
建物面積 29.46坪
間取 4LDK
間取詳細 (1F)LDK19.2、(2F)洋9.7、(2F)洋5.1、(2F)洋5.0、(2F)洋4.5
構造 木造
築年月 2026/03
都市計画 市街化区域
用途地域 第一種低層住居専用地域
建蔽率 50%
容積率 100%
地目 宅地
土地権利 所有権
現況 未完成
駐車場
接道 北東 4.5m(幅員) 私道
私道面積 -
小学校区 船橋市立夏見台小学校
中学校区 船橋市立船橋中学校
メモ ※引込電柱を新設する可能性があります。
・前面道路は行き止まりとなっております。
特色 ☆フラット35Sの利用できる安心の建物となっております。
☆建物も土地も安心の保証付きとなっていますよ♪
☆都市ガス・公営水道・本下水
ご内覧を希望のお客様は当社にて立ち合い・ご案内をさせて頂きますのでお手数ですがTEL0120-74-8818までお電話下さい。急いで現地へ向かいますので御連絡お待ちしております。
ポータルサイトや他社のホームページでも気になる物件があればお気軽にご連絡くださいませ(^^)/
特記事項 ※網戸、カーテンレール、照明器具、TVアンテナは別途となります。
※登記に関する、司法書士・家屋調査士は売主の指定となります。
※図面と現況が異なる場合、現況優先になります。
取引態様 仲介
※掲載されている物件データが現状と異なる場合は現状を優先します。

更新情報

情報更新日 2026年02月08日
次回更新予定日 2026年02月22日
取引条件有効期限 2026年02月13日

ローンシミュレーション

物件価格 4,880万円
頭金 万円
金利
借入期間
再計算
月々の返済額
年間の返済額
返済総額
利息合計
※ 毎回の返済額が開始から終了まで均等となる「元利均等返済」で算出しています。
※ 金利は期間中固定となる固定金利を採用しています。
※ 月々の返済額は小数点以下を繰り上げしております
※ シミュレーションでの結果は、あくまでも目安で、概算になります。実際にローン契約をする際は、詳細を金融機関にご確認ください。
※ 実際のローン契約時には諸費用・税金(手数料や印紙税、保証料など)が別途かかりますので、契約の際にご確認ください。

物件番号「32756」をお伝えください。

電話でお問合せ LINEでお問合せ
電話 メール LINE
簡易お問合せ

お名前


メールアドレス


問合せ内容


OK