船橋市旭町1丁目 新築一戸建て グランフェリディア 2号棟

価格 4,580万円

1/108
Point

船橋市旭町1丁目 新築一戸建て
グランフェリディア【2号棟】

不動産のオオタニなら仲介手数料無料0円!でご紹介しております♪→無料の秘密はこちら
◆◆2号棟について◆◆
◇通りから離れた静かな住宅街に建つ新築住宅です。
◇玄関を開けても室内が見えにくい、プライバシーに配慮した設計です。
◇部屋全体が見渡せる対面式のキッチンとなっております。
◇浴室・キッチン・洗面が近く、忙しい毎日を支える使いやすい住まい。
◇ご家族の会話も自然と増えるリビングイン階段です。
◇季節物の収納にも便利なファミリークローゼット付き。
◇奥行きのあるウォークインクローゼットもございますよ。
◇2部屋からアクセスできる、ゆとりあるバルコニーも魅力的です。

物件番号「32694」をお伝えください。

電話でお問合せ LINEでお問合せ

物件情報

価格 4,580万円
種目 新築戸建
交通 東武野田線 塚田まで 徒歩12分
住所
船橋市旭町1丁目 地図
住所詳細 9-27
土地面積 46.33坪
建物面積 31.81坪
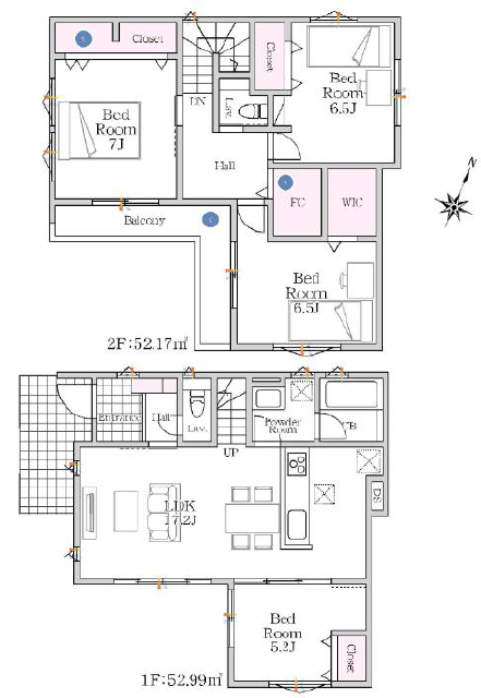
間取 4LDK
間取詳細 (1F)LDK17.2、(1F)洋5.2、(2F)洋7.0、(2F)洋6.5、(2F)洋6.5
構造 木造
築年月 2025/08
都市計画 市街化区域
用途地域 第一種低層住居専用地域
建蔽率 50%
容積率 100%
地目 宅地
土地権利 所有権
現況 完成済
駐車場
接道 南 4m(幅員) 公道
私道面積 -
小学校区 船橋市立塚田小学校
中学校区 船橋市立旭中学校
メモ ・周辺は坂道や幅員の狭い道路もございますので、現地周辺を十分ご確認ください。
特色 ☆建築物省エネ法に基づく評価で、高い省エネ性能が認められた住宅です。
☆断熱性や省エネ基準が高い「ZEH水準」のため、環境にもお財布にもやさしい住まい♪
☆オール電化住宅です。エコキュート&IHコンロで快適な暮らしを。
☆フラット35Sのご利用が可能な建物となっております。
☆土地も安心、地盤調査実施済!地盤20年保証システム。
☆シロアリ保証も10年付いております。
☆最長30年の住宅長期保証システム有。
☆玄関ドアはカードキー対応。
☆ご不在時のお届け物も安心の宅配ボックス付き♪
☆1階にはシャッター、全窓に網戸も付きのため追加費用が抑えられます。
☆オール電化・公営水道・本下水
ご内覧を希望のお客様は当社にて立ち合い・ご案内をさせて頂きますのでお手数ですがTEL0120-74-8818までお電話下さい。急いで現地へ向かいますので御連絡お待ちしております。
ポータルサイトや他社のホームページでも気になる物件があればお気軽にご連絡くださいませ(^^)/
特記事項 ※カーテンレール、照明器具、TVアンテナは別途となります。
※登記に関する、司法書士・家屋調査士は売主の指定となります。
※図面と現況が異なる場合、現況優先になります。
取引態様 仲介
※掲載されている物件データが現状と異なる場合は現状を優先します。

更新情報

情報更新日 2026年01月22日
次回更新予定日 2026年02月05日
取引条件有効期限 2026年01月30日

ローンシミュレーション

物件価格 4,580万円
頭金 万円
金利
借入期間
再計算
月々の返済額
年間の返済額
返済総額
利息合計
※ 毎回の返済額が開始から終了まで均等となる「元利均等返済」で算出しています。
※ 金利は期間中固定となる固定金利を採用しています。
※ 月々の返済額は小数点以下を繰り上げしております
※ シミュレーションでの結果は、あくまでも目安で、概算になります。実際にローン契約をする際は、詳細を金融機関にご確認ください。
※ 実際のローン契約時には諸費用・税金(手数料や印紙税、保証料など)が別途かかりますので、契約の際にご確認ください。

物件番号「32694」をお伝えください。

電話でお問合せ LINEでお問合せ
電話 メール LINE
簡易お問合せ

お名前


メールアドレス


問合せ内容


OK