船橋市芝山5丁目 新築一戸建て タイムスペースハウス 1号棟

価格 4,580万円

1/20
Point

船橋市芝山5丁目新築一戸建 タイムスペースハウス【1号棟】
不動産のオオタニなら仲介手数料無料0円!でご紹介しております♪→無料の秘密はこちら
◆◆1号棟について◆◆
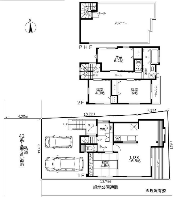
◇デザイン性の高い外観が目を惹く新築戸建です。
◇駐車スペースは2台分ございます。出し入れのしやすい並列タイプです。
◇玄関には収納をたっぷり設けました。
◇ご家族の会話も自然と弾む、対面式のキッチン。
◇リビング横の和室は板の間のある落ち着いた雰囲気。客間としても最適です。
◇2階に洗面室や浴室がある造りとなっております。
◇外の視線を気にせず家族団らんが楽しめる、広いスカイバルコニーも魅力的♪
◇小中学校までは徒歩10分圏内。大通りを渡らず通えてお子様も安心。

物件番号「32558」をお伝えください。

電話でお問合せ LINEでお問合せ

物件情報

価格 4,580万円
種目 新築戸建
交通 東葉高速線 飯山満まで 徒歩12分
住所
船橋市芝山5丁目 地図
住所詳細 12-3
土地面積 32.99坪
建物面積 27.97坪
間取 4LDK
間取詳細 (1F)LDK16.5、(1F)和4.8、(2F)洋6.2、(2F)洋6.0、(2F)洋4.3
構造 木造
築年月 2026/04
都市計画 市街化区域
用途地域 第一種低層住居専用地域
建蔽率 50%
容積率 100%
地目 宅地
土地権利 所有権
現況 未完成
駐車場
接道 西 4m(幅員) 私道 6.7m(接面)
私道面積 13.36m²
小学校区 船橋市立芝山東小学校
中学校区 船橋市立芝山中学校
メモ ・周辺は狭い道路もございますので、通行の際はご注意ください。
・敷地横に緑地帯への入り口があります。
特色 ☆建物は安心の10年保証ですよ!
☆土地も安心、地盤調査実施済!地盤10年保証システム。
☆訪問者が一目でわかるTVモニター付インターホン。
☆浴室換気乾燥機付きユニットバス。
☆1、2階に温水洗浄便座付きです。
☆窓は断熱性能の高いLow-eペアガラスですよ。
☆玄関ドアは2ロックと、防犯サムターン付です。
☆洗車や植栽の水まきにも便利な外水道もあります。
☆都市ガス、公共本下水、公営水道
ご内覧を希望のお客様は当社にて立ち合い・ご案内をさせて頂きますのでお手数ですがTEL0120-74-8818までお電話下さい。急いで現地へ向かいますので御連絡お待ちしております。
ポータルサイトや他社のホームページでも気になる物件があればお気軽にご連絡くださいませ(^^)/
特記事項 ※網戸、カーテンレール、照明器具、TVアンテナ等は別途となります。
※登記に関する、司法書士・家屋調査士は売主の指定となります。
※図面と現況が異なる場合、現況優先になります。
取引態様 仲介
※掲載されている物件データが現状と異なる場合は現状を優先します。

更新情報

情報更新日 2026年01月30日
次回更新予定日 2026年02月27日
取引条件有効期限 2026年02月13日

ローンシミュレーション

物件価格 4,580万円
頭金 万円
金利
借入期間
再計算
月々の返済額
年間の返済額
返済総額
利息合計
※ 毎回の返済額が開始から終了まで均等となる「元利均等返済」で算出しています。
※ 金利は期間中固定となる固定金利を採用しています。
※ 月々の返済額は小数点以下を繰り上げしております
※ シミュレーションでの結果は、あくまでも目安で、概算になります。実際にローン契約をする際は、詳細を金融機関にご確認ください。
※ 実際のローン契約時には諸費用・税金(手数料や印紙税、保証料など)が別途かかりますので、契約の際にご確認ください。

物件番号「32558」をお伝えください。

電話でお問合せ LINEでお問合せ
電話 メール LINE
簡易お問合せ

お名前


メールアドレス


問合せ内容


OK