船橋市習志野台4丁目 新築一戸建て ハートフルタウン B号棟

価格 4,490万円

1/67
Point

船橋市習志野台4丁目
ハートフルタウン【B号棟】

不動産のオオタニなら仲介手数料無料0円!でご紹介しております♪→無料の秘密はこちら
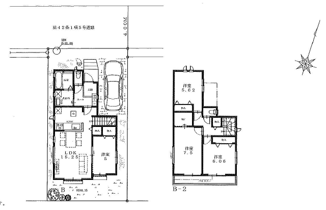
◆◆B号棟について◆◆
◇2路線2駅が徒歩圏内でご利用可能な地域に建つ新築住宅です。
◇ご家族の会話も自然と弾む、対面式のキッチン。
◇ダイニング横にはあると便利な物入がございます。
◇誰が帰ってきたかすぐにわかるリビングイン階段です。
◇主寝室には奥行きのあるウォークインクローゼットを設けました。

◇南向きの続きバルコニーは、2部屋から行き来できる便利な造り。

物件番号「32506」をお伝えください。

電話でお問合せ LINEでお問合せ

物件情報

価格 4,490万円
種目 新築戸建
交通 京成松戸線 習志野まで 徒歩12分
東葉高速線 北習志野まで 徒歩18分
京成松戸線 北習志野まで 徒歩18分
住所
船橋市習志野台4丁目 地図
住所詳細 61-2
土地面積 33.08坪
建物面積 28.86坪
間取 4LDK
間取詳細 (1F)LDK15.25、(1F)洋5.0、(2F)洋7.5、(2F)洋6.06、(2F)洋5.62
構造 木造
築年月 2026/03
都市計画 市街化区域
用途地域 第一種中高層住居専用地域
建蔽率 60%
容積率 200%
地目 宅地
土地権利 所有権
現況 未完成
駐車場
接道 北西 4m(幅員) 私道
私道面積 -
小学校区 船橋市立薬円台小学校
中学校区 船橋市立習志野台中学校
メモ ・道路の向かい側に砂利敷きの月極駐車場があります。
特色 ☆設計・建設住宅性能評価書付き!地震に強い安心の造り。
☆耐震等級などの7項目で最高等級を取得済みの建物です。
☆フラット35Sのご利用が可能ですよ。
☆建物も土地もしっかり保証が付いております。
☆建築物省エネ法に基づく評価で、高い省エネ性能が認められた住宅です。
☆断熱性や省エネ基準が高い「ZEH水準」のため、環境にもお財布にもやさしい住まい。
☆都市ガス、東京電力、公共本下水、公営水道
ご内覧を希望のお客様は当社にて立ち合い・ご案内をさせて頂きますのでお手数ですがTEL0120-74-8818までお電話下さい。急いで現地へ向かいますので御連絡お待ちしております。
ポータルサイトや他社のホームページでも気になる物件があればお気軽にご連絡くださいませ(^^)/
特記事項 ※網戸、カーテンレール、照明器具、TVアンテナは別途となります。
※登記に関する、司法書士・家屋調査士は売主の指定となります。
※図面と現況が異なる場合、現況優先になります。
※私道負担有
※中学校は、二宮中学校と習志野台中学校が選択可能です。
取引態様 仲介
※掲載されている物件データが現状と異なる場合は現状を優先します。

更新情報

情報更新日 2026年02月17日
次回更新予定日 2026年03月17日
取引条件有効期限 2026年03月03日

ローンシミュレーション

物件価格 4,490万円
頭金 万円
金利
借入期間
再計算
月々の返済額
年間の返済額
返済総額
利息合計
※ 毎回の返済額が開始から終了まで均等となる「元利均等返済」で算出しています。
※ 金利は期間中固定となる固定金利を採用しています。
※ 月々の返済額は小数点以下を繰り上げしております
※ シミュレーションでの結果は、あくまでも目安で、概算になります。実際にローン契約をする際は、詳細を金融機関にご確認ください。
※ 実際のローン契約時には諸費用・税金(手数料や印紙税、保証料など)が別途かかりますので、契約の際にご確認ください。

物件番号「32506」をお伝えください。

電話でお問合せ LINEでお問合せ
電話 メール LINE
簡易お問合せ

お名前


メールアドレス


問合せ内容


OK