船橋市田喜野井4丁目 新築一戸建て ミラスモ 1号棟

価格 3,780万円

1/16
Point

船橋市田喜野井4丁目 新築一戸建て ミラスモ【1号棟】
不動産のオオタニなら仲介手数料無料0円!でご紹介しております♪→無料の秘密はこちら
◆◆1号棟について◆◆
◇京成松戸線『薬円台』駅から徒歩13分の静かな住宅街に建つ新築住宅。
◇駐車スペースは2台分付き。並列のため出し入れもしやすいです。
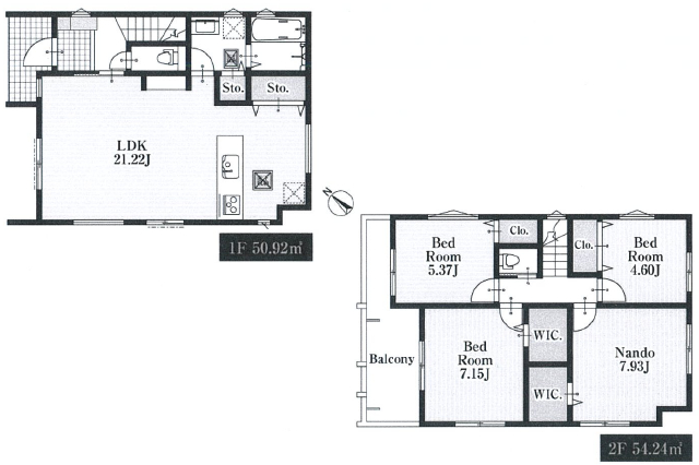
◇21帖超えのLDKはとても開放的♪大きなソファ等も余裕をもって置けそうです。
◇炊事中もリビングまで見渡せる対面式のキッチン。
◇ストック食品やキッチン周りの小物もスッキリ収納できるパントリー。
◇水回り集中設計。家事動線に配慮しました。
◇2階の納戸は収納としてはもちろん、居室としても十分ご活用できますよ。
◇ウォークインクローゼットは2箇所付いております。
◇2部屋から出入りできる続きバルコニーも魅力的。

物件番号「32414」をお伝えください。

電話でお問合せ LINEでお問合せ

物件情報

価格 3,780万円
種目 新築戸建
交通 京成松戸線 薬園台まで 徒歩13分
住所
船橋市田喜野井4丁目 地図
住所詳細 27-4
土地面積 35.48坪
建物面積 31.81坪
間取 3SLDK
間取詳細 (1F)LDK21.22、(2F)納戸7.93、(2F)洋7.15、(2F)洋5.37、(2F)洋4.6
構造 木造
築年月 2026/01
都市計画 市街化区域
用途地域 第一種中高層住居専用地域
建蔽率 60%
容積率 200%
地目 宅地
土地権利 所有権
現況 未完成
駐車場 有(2台分)
接道 北西 4m(幅員) 公道 7.6m(接面)
私道面積 4.95m²
小学校区 船橋市立田喜野井小学校
中学校区 船橋市立二宮中学校
メモ ※小学校は二宮小学校(700m)、田喜野井小学校(350m)から選択できます。
※中学校は二宮中学校(700m)、三田中学校(850m)から選択できます。
特色 ☆都市ガス・公営水道・本下水
☆地盤調査実施済み!地盤保証20年となっております。
☆シロアリ保証5年付きです。
☆段差を最小限に抑えたバリアフリー仕様。
☆長期固定金利で安心のフラット35Sがご利用できます。
☆夏は涼しく、冬はあたたかく。 断熱性に優れたアルミ樹脂複合サッシ仕様です。
☆やさしく足元を照らす階段足元灯で、つまずきや転倒を防ぎ、安全性を高めます。
☆高効率ガス給湯器「エコジョーズ」で快適&エコな暮らし。
ご内覧を希望のお客様は当社にて立ち合い・ご案内をさせて頂きますのでお手数ですがTEL0120-74-8818までお電話下さい。急いで現地へ向かいますので御連絡お待ちしております。
ポータルサイトや他社のホームページでも気になる物件があればお気軽にご連絡くださいませ(^^)/
特記事項 ※網戸、カーテンレール、照明器具、TVアンテナは別途となります。
※登記に関する、司法書士・家屋調査士は売主の指定となります。
※図面と現況が異なる場合、現況優先になります。
※フラット35をご利用の場合は165,000円(税込)がかかります。
取引態様 仲介
※掲載されている物件データが現状と異なる場合は現状を優先します。

更新情報

情報更新日 2025年11月23日
次回更新予定日 2025年12月21日
取引条件有効期限 2025年12月06日

ローンシミュレーション

物件価格 3,780万円
頭金 万円
金利
借入期間
再計算
月々の返済額
年間の返済額
返済総額
利息合計
※ 毎回の返済額が開始から終了まで均等となる「元利均等返済」で算出しています。
※ 金利は期間中固定となる固定金利を採用しています。
※ 月々の返済額は小数点以下を繰り上げしております
※ シミュレーションでの結果は、あくまでも目安で、概算になります。実際にローン契約をする際は、詳細を金融機関にご確認ください。
※ 実際のローン契約時には諸費用・税金(手数料や印紙税、保証料など)が別途かかりますので、契約の際にご確認ください。

物件番号「32414」をお伝えください。

電話でお問合せ LINEでお問合せ
電話 メール LINE
簡易お問合せ

お名前


メールアドレス


問合せ内容


OK