船橋市小室町3333番 新築一戸建て ハートフルタウン B号棟

価格 3,190万円

1/21
Point

船橋市小室町 新築一戸建て ハートフルタウン【B号棟】
不動産のオオタニなら仲介手数料無料0円!でご紹介しております♪→無料の秘密はこちら
◆◆B号棟について◆◆
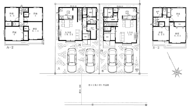
◇南道路に面した静かな住宅街に建つ新築住宅です。
◇駐車スペースは並列で2台分。来客時も安心ですね。
◇玄関を開けても室内がほとんど見えない嬉しい造り。
◇炊事中もリビングまで見渡せる対面式のキッチン仕様です。
◇水回り集中設計。家事動線に配慮しました。
◇ご家族のコミュニケーションも自然と増えるリビングイン階段。
◇全てのお部屋に収納が付いております。
◇約2帖の納戸も設けました。季節物の収納にも便利です。
◇2部屋から行き来できる続きバルコニーも魅力的ですね。
◇小中学校まで共に徒歩4分!大通りも渡らず通えてお子様も安心♪

物件番号「32372」をお伝えください。

電話でお問合せ LINEでお問合せ

物件情報

価格 3,190万円
種目 新築戸建
交通 北総線 小室まで 徒歩14分
住所
船橋市小室町 地図
住所詳細 3333-2
土地面積 32.13坪
建物面積 25.54坪
間取 3SLDK
間取詳細 (1F)LDK16.0、(2F)洋6.62、(2F)洋5.25、(2F)洋5.0、(2F)納戸2.0
構造 木造
築年月 2026/01
都市計画 市街化区域
用途地域 第一種低層住居専用地域
建蔽率 40%
容積率 80%
地目 宅地
土地権利 所有権
現況 未完成
駐車場 有(2台分)
接道 南西 6m(幅員) 公道
私道面積 -
小学校区 船橋市立小室小学校
中学校区 船橋市立小室中学校
メモ ・敷地内に電柱が立っています。
特色 ☆設計・建設住宅性能評価書付き!地震に強い安心の造り。
☆耐震等級などの7項目で最高等級を取得済みの建物です。
☆フラット35Sのご利用が可能ですよ。
☆建物も土地もしっかり保証が付いております。
☆建築物省エネ法に基づく評価で、高い省エネ性能が認められた住宅です。
☆断熱性や省エネ基準が高い「ZEH水準」のため、環境にもお財布にもやさしい住まい。
☆都市ガス、公営水道、本下水、東京電力
ご内覧を希望のお客様は当社にて立ち合い・ご案内をさせて頂きますのでお手数ですがTEL0120-74-8818までお電話下さい。急いで現地へ向かいますので御連絡お待ちしております。
ポータルサイトや他社のホームページでも気になる物件があればお気軽にご連絡くださいませ(^^)/
特記事項 ※網戸、カーテンレール、照明器具、TVアンテナは別途となります。
※登記に関する、司法書士・家屋調査士は売主の指定となります。
※図面と現況が異なる場合、現況優先になります。
取引態様 仲介
※掲載されている物件データが現状と異なる場合は現状を優先します。

更新情報

情報更新日 2025年12月05日
次回更新予定日 2025年12月19日
取引条件有効期限 2025年12月06日

ローンシミュレーション

物件価格 3,190万円
頭金 万円
金利
借入期間
再計算
月々の返済額
年間の返済額
返済総額
利息合計
※ 毎回の返済額が開始から終了まで均等となる「元利均等返済」で算出しています。
※ 金利は期間中固定となる固定金利を採用しています。
※ 月々の返済額は小数点以下を繰り上げしております
※ シミュレーションでの結果は、あくまでも目安で、概算になります。実際にローン契約をする際は、詳細を金融機関にご確認ください。
※ 実際のローン契約時には諸費用・税金(手数料や印紙税、保証料など)が別途かかりますので、契約の際にご確認ください。

物件番号「32372」をお伝えください。

電話でお問合せ LINEでお問合せ
電話 メール LINE
簡易お問合せ

お名前


メールアドレス


問合せ内容


OK