船橋市二和西2丁目 新築一戸建て フレスティア 1号棟

価格 3,998万円

1/180
Point

船橋市二和西2丁目 新築一戸建て
フレスティア【1号棟】

不動産のオオタニなら仲介手数料無料0円!でご紹介しております♪→無料の秘密はこちら
◆◆1号棟について◆◆
◇地震から家を守る木造住宅用制震装置施工の3LDKの新築住宅です。
◇玄関ホール横に洗面脱衣室があるので、帰宅後すぐに手洗いができます。
◇ワイドな洗面室には室内物干しがあるので、便利ですよ。
◇開放感のある対面式のキッチンは料理が楽しくなりそうです♪
◇リビング内に家事をしながらお子様の勉強が確認できるフリースペースカウンターございます。
◇周辺は戸建が建ち並ぶ静かなでのどかな住環境です。

物件番号「31592」をお伝えください。

電話でお問合せ LINEでお問合せ

物件情報

価格 3,998万円
種目 新築戸建
交通 京成松戸線 滝不動まで 徒歩18分
総武線快速 船橋まで バス30分 停歩8分
東武野田線 船橋まで バス30分 停歩8分
住所
船橋市二和西2丁目 地図
住所詳細 3-16付近
土地面積 39.84坪
建物面積 29.63坪
間取 3LDK
間取詳細 (1F)LDK18.8、(2F)洋6.2、(2F)洋6.2、(2F)洋5.2
構造 木造
築年月 2025/08
都市計画 市街化区域
用途地域 第一種低層住居専用地域
建蔽率 40%
容積率 80%
地目 宅地
土地権利 所有権
現況 完成済
駐車場 有(2台分)
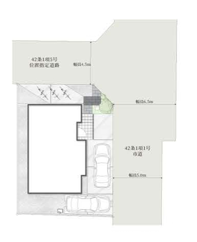
接道 東 5m(幅員) 公道
北 4.5m(幅員) 私道
私道面積 16m²
小学校区 船橋市立金杉台小学校
中学校区 船橋市立御滝中学校
メモ ・敷地前に電柱、敷地内に支線が立っています。
特色 ☆炭の室内換気システムを完備。調湿力に優れた炭で部屋全体を快適に♪
☆長期固定金利で安心のフラット35Sが利用できます。
☆土地も安心、地盤調査実施済みです!
☆訪問者が一目でわかるTVモニター付インターホン。
☆浴室乾燥機、ビルトイン食洗機など、あると便利な設備がたくさん。
☆専任スタッフの定期点検があります。お引き渡し後も安心ですね。
☆LDKのアクセントクロスも魅力的です。
☆都市ガス・公営水道・本下水
ご内覧を希望のお客様は当社にて立ち合い・ご案内をさせて頂きますのでお手数ですがTEL0120-74-8818までお電話下さい。急いで現地へ向かいますので御連絡お待ちしております。
ポータルサイトや他社のホームページでも気になる物件があればお気軽にご連絡くださいませ(^^)/
特記事項 ※網戸、カーテンレール、照明器具、TVアンテナは別途となります。
※登記に関する、司法書士・家屋調査士は売主の指定となります。
※図面と現況が異なる場合、現況優先になります。
※法第22条区域
※風致地区
取引態様 仲介
※掲載されている物件データが現状と異なる場合は現状を優先します。

更新情報

情報更新日 2025年12月06日
次回更新予定日 2025年12月20日
取引条件有効期限 2025年12月06日

ローンシミュレーション

物件価格 3,998万円
頭金 万円
金利
借入期間
再計算
月々の返済額
年間の返済額
返済総額
利息合計
※ 毎回の返済額が開始から終了まで均等となる「元利均等返済」で算出しています。
※ 金利は期間中固定となる固定金利を採用しています。
※ 月々の返済額は小数点以下を繰り上げしております
※ シミュレーションでの結果は、あくまでも目安で、概算になります。実際にローン契約をする際は、詳細を金融機関にご確認ください。
※ 実際のローン契約時には諸費用・税金(手数料や印紙税、保証料など)が別途かかりますので、契約の際にご確認ください。

物件番号「31592」をお伝えください。

電話でお問合せ LINEでお問合せ
電話 メール LINE
簡易お問合せ

お名前


メールアドレス


問合せ内容


OK