|
新築戸建
[価格]
3,390万円
|
||||
|---|---|---|---|---|
| 最寄駅 | 住所1 | 土地面積 建物面積 |
建物構造 間取 |
築年月 引渡時期 |
| 東武野田線 鎌ケ谷まで 徒歩13分 | 鎌ケ谷市東道野辺1丁目 鎌ケ谷市東道野辺1丁目 新築一戸建て ブルーミングガーデン 2号棟 |
108.86m² 103.5m² |
木造 4LDK |
2025/12 相談 |

| 物件番号 | 32500 | ||
|---|---|---|---|
| 住所 | 鎌ケ谷市東道野辺1丁目 | 住所詳細 | 9-17 |
| 交通 | 東武野田線 鎌ケ谷まで 徒歩13分 | ||
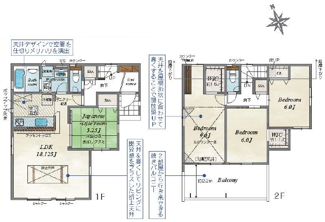
| 間取 | 4LDK | ||
| 間取詳細 | (1F)LDK18.125、(2F)和5.25、(2F)洋9.0、(2F)洋6.0、(2F)洋6.0 | ||
| 建物面積 | 103.5m² | 建物面積(坪) | 31.3坪 |
| 建物構造 | 木造 | 地上階 | 2 |
| 西暦築年月 | 2025/12 | 現況 | 未完成 |
| 駐車場 | 有 | 引渡時期 | 相談 |
| 土地面積 | 108.86m² | 土地面積(坪) | 32.93坪 |
| 地目 | 宅地 | 地勢 | |
| 土地権利 | 所有権 | 私道面積 | 23.04m² |
| 都市計画 | 市街化区域 | 用途地域1 | 第一種低層住居専用地域 |
| 建ぺい率1 | 60% | 容積率1 | 150% |
| 学区 | 鎌ケ谷市立南部小学校 860m 鎌ケ谷市立第四中学校 1,910m |
||
| 接道 | 南 私道 | ||
| 特色 | ☆設計・建設住宅性能評価書付き!耐震等級は最高の3です。
☆繰り返す地震に強い『制震ダンパー』が標準仕様です。 ☆フラット35Sの利用できる安心の建物となっております。 ☆長期優良住宅です。建物も安心、税制優遇もたくさん! ☆建物も土地も安心の保証付きとなっていますよ♪ ☆不在時のお届け物も安心の宅配ボックス付きです。 ☆人造大理石カウンターが美しい、食洗機付きのシステムキッチン。 ☆都市ガス、公営水道、浄化槽 ご内覧を希望のお客様は当社にて立ち合い・ご案内をさせて頂きますのでお手数ですがTEL0120-74-8818までお電話下さい。急いで現地へ向かいますので御連絡お待ちしております。 ポータルサイトや他社のホームページでも気になる物件があればお気軽にご連絡くださいませ(^^)/ |
||
| 特記事項 | ※網戸、カーテンレール、照明器具、TVアンテナは別途となります。 ※登記に関する、司法書士・家屋調査士は売主の指定となります。 ※図面と現況が異なる場合、現況優先になります。 ※駐車スペースは車種制限がございます。 |
||
| チェックポイント | ※私道持分:23.04㎡分の23.04㎡ ※セットバック済:23.04㎡(各2分の1ずつ) ※路地上部分:1号棟約27㎡ ※協定道路:敷地面積に含む(1号棟:0.54㎡) ※1号棟敷地の一部(隅切り部分)について2号棟所有者と地役権設定契約を締結いたします。 ※用途境がございます。 ・前面道路は行き止まりとなっております。 ・周辺は狭い道路や急勾配の箇所もございますので、通行の際はご注意ください。 |
||
| 情報更新日 | 2025年11月03日 | 次回更新予定日 | 2025年12月01日 |
| 取引条件有効期限 | 2025年11月16日 | ||
|
地図を右クリックでルート検索が可能です。
|